世田谷区 賃貸店舗一部

世田谷区 賃貸店舗一部

お問い合わせ番号:f11156-152660-114266
賃貸店舗一部
世田谷区赤堤4
下高井戸駅 ( 徒歩 1分 )
賃料 27.50万円(税込)
(坪単価:1.97万円)
日大通りに面する2階店舗です。
サービス店舗等、何業も相談可能
管理費 -
保証金
解約引
6ヶ月
1ヶ月
敷金
礼金
更新料
-
2ヶ月
1.5ヶ月
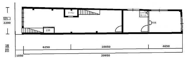
建物/専有
面積
46.09m2
(13.94坪)
土地面積 - 築年月 1963年3月
(昭和38年3月)
駐車場 - 所在階 2階 地上階数
地下階数
2階
-
構造 木造
取引 仲介
物件登録日 2025年10月3日
情報更新日 2025年10月3日
■賃料:275,000円(税込)
■共益費:なし
■専有面積:46.09㎡
■礼金:2ヶ月
■保証金:6ヶ月
■解約時償却:1ヶ月

◇事業拡大、移転、新規開業など、事務所店舗のご相談・ご要望なんでもテナントトショップ文京-KFP-にお任せください。
お客様のニーズに合った物件をご紹介いたします。

世田谷区 賃貸店舗一部 周辺地図

世田谷区 賃貸店舗一部 のことならお気軽にご相談ください。
テナントショップ文京(㈱KFP)
TEL:03-5615-9542
営業時間:9:30-18:30
定休日 :土日祝日 定休日もご連絡をいただければ対応できます。
メールでのお問い合わせ

お電話の場合は「テナントショップを見ました。物件番号は < f11156-152660-114266 > です」と伝えていただくとスムーズにお応えできます。

  • 借りる
  • テナント・貸店舗を探す
  • オフィス・事務所を探す
  • 倉庫・工場を探す
  • 貸土地・借地を探す
  • 居抜き物件
  • 買う
  • 売買物件を探す
  • 依頼する
  • 新着物件!未公開物件!地元に詳しい!
  • 物件リクエスト
検索する
スペース区切りの複合語句検索はできません

  • スマホで物件検索
  • 実績紹介
  • 物件管理
  • 会社概要・アクセス
  • 株式会社KFP